6 6th Avenue, Huntington Station, NY 11746

24 Photos
 
$650,000 Sold Price
Sold on 11/15/2024
4 Beds
2 Baths
Built In 1942
 
Listing ID 11287282
Property Type Residential
County Suffolk
School South Huntington
Total Tax $9,954
Tax ID 0400-142-00-02-00-037-001
FEMA Flood Map fema.gov/portal
Year Built 1942
Virtual Tour
Property Details
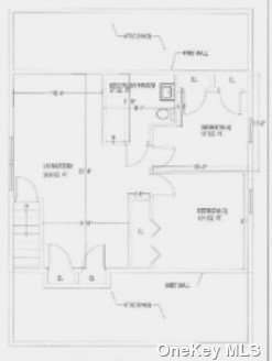
  • 4 Total Bedrooms
  • 2 Full Baths
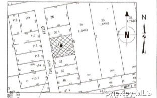
  • 11326 SF Lot
  • Built in 1942
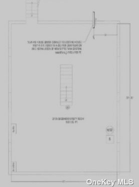
  • Lower Level: Unfinished, Bilco Doors
Interior Features
  • 8 Rooms
  • Family Room
  • Baseboard
  • Natural Gas Fuel
  • Wall/Window A/C
Exterior Features
  • Vinyl Siding
  • Has Garage
  • Community Water
  • Other Waste Removal
Taxes and Fees
  • $9,954 Total Tax
Sale Information
  • Sold on 11/15/2024
  • Sold for $650,000
  • Buyer's Agent: M Mireya Mead
  • Company: Coldwell Banker American Homes
Previously Listed By
Signature Premier Properties
Office: 631-673-3900
Request More Information
Request Showing
Role Agent Buyer
Your Preferred Date & Time
Showing Type:

Mortgage Calculator

Estimate your mortgage payment, including the principal and interest, taxes, insurance, HOA, and PMI.

The amount you plan to offer for a home.
Cash you can pay when you close.
Varies depending on lender and credit score.
Affects interest rates. 30- or 15-year loans are standard.
Amortization Schedule

Advanced Options

Percentage of home's value. Varies by area.
Based on average insurance costs nationally.
Required if down payment is less than 20%. Rate depends on lender and credit score.
Fees paid in some shared complexes for maintenance.
Listing data is deemed reliable but is NOT guaranteed accurate.
Contact Us
Who Would You Like to Contact Today?

I want to contact an agent about this property!

I wish to provide feedback about the website functionality

Contact Agent
Your Name:
Email:
Phone:
Message:
Security: What is 6 minus 4?